Die effizienteste Methode digitale Pläne zu erstellen
Ausmessen von Immobilien und digitalisieren von Plänen
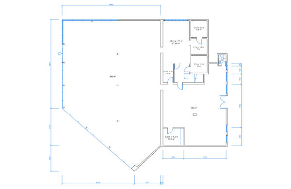
Oft fehlen bei älteren Immobilien digitale Pläne mit den richtigen Massen. Diese sind aber bei Umbau, Verkauf oder Vermietung immens wichtig. Die Matterport-Technologie ermöglicht es, Ihr Objekt einfach auszumessen und danach digitale Pläne zu erstellen.



Für ältere Immobilien, Wohnungen oder andere Lokalitäten, sind in der Regel keine digitalen Daten vorhanden.
Wir scannen die gesamte Fläche mit der Matterport-Technologie bei ca. 98 % Genauigkeit.
Danach werden Pläne in PDF- und DWG-Formaten erstellt. Diese enthalten auch die Masse und dienen zur Weiterverarbeitung in gängigen Programmen.



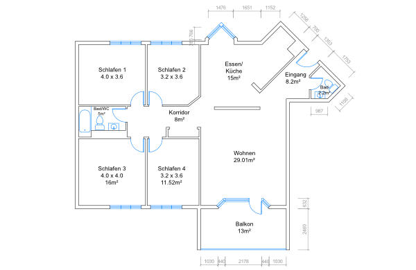
Visualisieren des Grundrisses mit und ohne Möblierung
Zur Ergänzung und Verschönerung Ihrer Verkaufsdokumentationen können wir den Grundriss wie folgt visualisieren:

2D Plan möbliert

Unmöblierte 3D Visualisierung

Möblierte 3D Visualisierung
